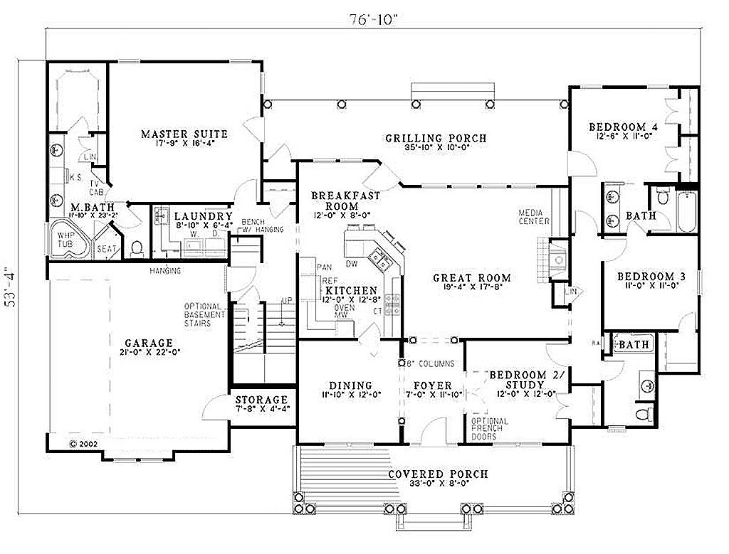
House Plans Of 4 Bedrooms
Life is both wonderfully and painfully unpredictable.

House plans of 4 bedrooms. 4 bedroom house plans allow children to have their own space while creating room for guests in laws and elderly relatives. 4 bedroom house plans whether you have a growing family need a guest room for visitors or want a bonus room to use as an office or gym four bedroom floor plans provide ample space for homeowners. From 92000 4 bed 3359 ft 2 35. Four bedroom plans are available in one story or two story designs.
These 4 bedroom home designs are suitable for a wide variety of lot sizes including narrow lots. As you browse the collection below dont be surprised to see a wide assortment of sizes interior layouts and architectural styles. Four bedroom home plans can give your family more flexibility to the living spaces in the home. For instance a contemporary house plan might feature a woodsy craftsman exterior a modern open layout and rich outdoor living space.
Modern house plans proudly present modern architecture as has already been described. Contemporary house plans on the other hand typically present a mixture of architecture thats popular today. Below are 4 bedroom home designs that have the choice of elevations and plans. The fourth room could serve not only as a bedroom but also used as a guest room den hobby room or play room.
As your family grows youll certainly need more space to accommodate everyone in the household. Sprawling four bedroom house plan 892 3 for instance. 4 bedroom house plans offer space and flexibility. This is where moving to a 4 bedroom house becomes more of a priority rather than a luxury.
Ready when you are. Four bedroom house plans sometimes written 4 bedroom floor plans are popular with growing families as they offer plenty of room for everyone. Dream home sources collection of 4 bedroom house plans will help you prepare for the unknown and make your dream of building a home come true. If contemporary house plans sound more up your alley have no.
4 bedroom house plans usually allow each child to have their own room with a generous master suite and possibly a guest room. Choose your favorite 4 bedroom house plan from our vast collection. At the same time empty nesters who expect frequent out of town guests like grandchildren adult children family friends etc may also appreciate. Back 1 10 next 282 results.
They offer a good amount of square footage as well as a layout that separates living spaces so you can set them up in whatever way suits you. Many 4 bedroom house plans include amenities like mud rooms studies and walk in pantriesto see more four bedroom house plans try our advanced floor plan search. Which plan do you want to build. 4 bedroom house plans home designs.
4 bedroom house plans. Find a 4 bedroom home thats right for you from our current range of home designs and plans.




